Residencia de dos niveles con integración estructural eficiente
Diseño residencial que combina precisión técnica y materialidad contextual.

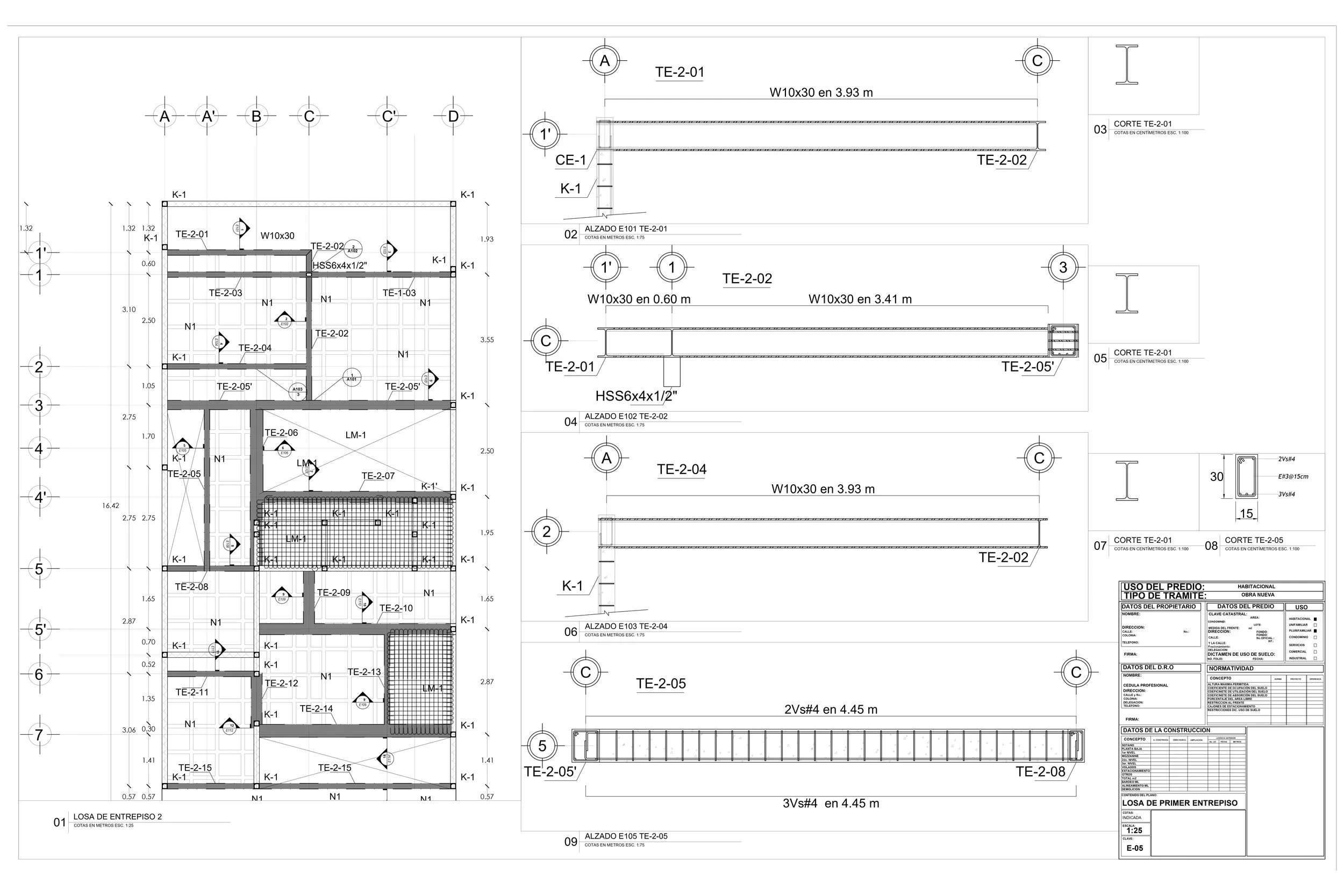
Para Casa El Roble, se desarrolló un proyecto estructural que articula elementos de acero con mampostería confinada, logrando una solución eficiente, segura y visualmente coherente. Esta interacción permite aprovechar las propiedades complementarias de ambos materiales: la rigidez y ductilidad del acero, junto con la masa y estabilidad de la mampostería, generando una estructura confiable y adaptable a las exigencias residenciales.

🔹 Características técnicas del proyecto:

  • Sistema estructural mixto, con marcos de acero en zonas de mayor exigencia y muros confinados en áreas de soporte y cerramiento.

  • Diseño contra cargas laterales, con comportamiento optimizado frente a viento y sismo.

  • Coordinación entre arquitectura y estructura, asegurando continuidad espacial y eficiencia constructiva.

  • Optimización de secciones, con enfoque en durabilidad, mantenimiento y ejecución racional.

🔹 Valor agregado:
Este proyecto representa una solución estructural residencial de alto desempeño, donde la integración de acero y mampostería no solo responde a criterios técnicos, sino también a una visión arquitectónica clara. Isótropo Edificación y Proyectos reafirma su capacidad para diseñar espacios habitables con estructura inteligente, estética sobria y ejecución precisa.

Anterior
Anterior

Departamentos Monarca, Querétaro, Qro., Mx.